怎样在电脑上设计制图(甲级设计高手CAD快速制图秘笈)
怎样在电脑上设计制图(甲级设计高手CAD快速制图秘笈)
CAD作为研发设计类工业软件,通常用于产品设计、工程制图、3D建模等方面,可以帮助设计师快速制图、创新设计,加速企业数字化变革进程。
浩辰软件针对行业用户的痛点需求,不仅深度优化了浩辰CAD的专业工具,还推出了工程建设行业解决方案——浩辰CAD建筑等专业软件。今天,小编准备了甲级设计院高手CAD快速制图秘笈,教大家如何快速绘制建筑平面图,包含一整套建筑设计内容,不要错过噢。

绘图前设置
首先,下载、安装浩辰CAD建筑,并在「设置帮助」—「软件帮助」中查看浩辰建筑详细说明,熟悉各功能应用。

轴网绘制与标注
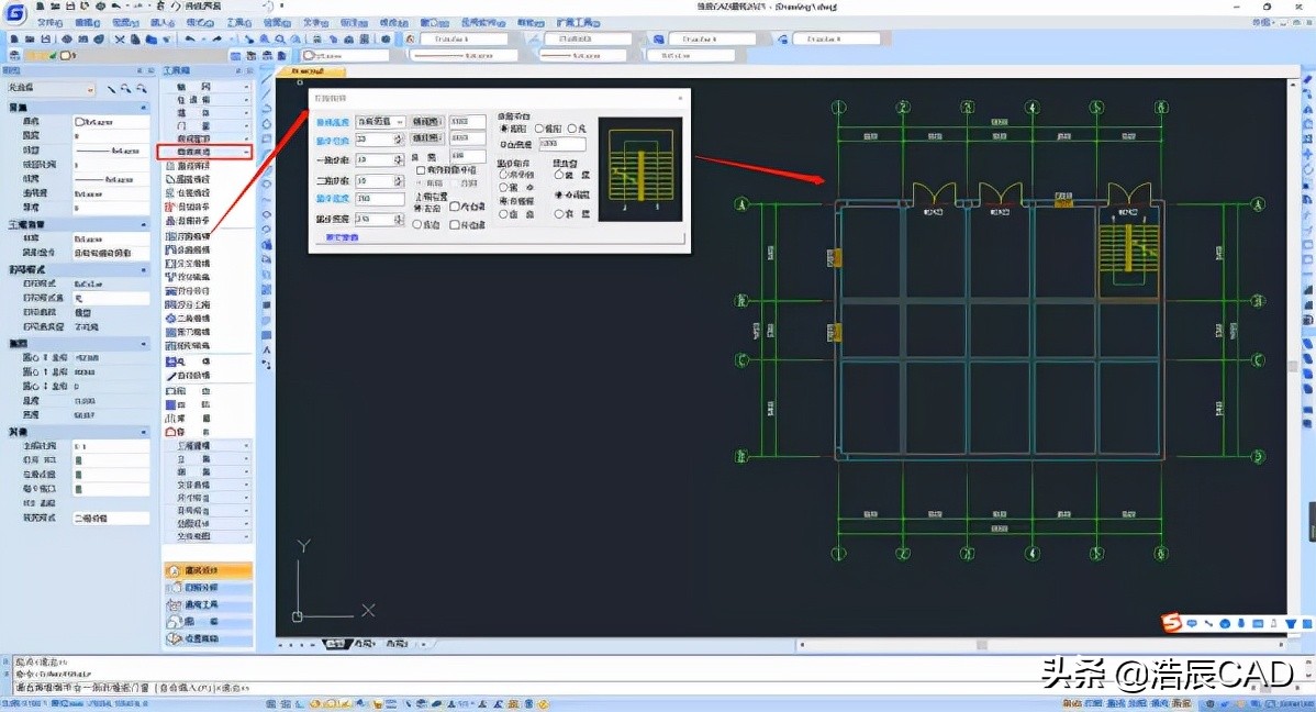
在浩辰CAD建筑的工具箱中,使用「轴网」—「绘制轴网」命令,可绘制直线轴网和圆弧轴网。调出对话框后,点选轴间距,点击「确定」后即可。

绘制轴网后,可使用浩辰CAD建筑工具箱的「轴网」—「轴网标注」,对轴网进行单侧标注或双侧标注即可。
墙体、柱体绘制
浩辰CAD建筑提供了墙体绘制、单线变墙等2种方式来绘制墙体。根据上述所绘制的轴网,可在建筑工具箱中选择「墙体」—「单线变墙」,并框选轴网,确定后即可。
关于柱体的绘制,可使用浩辰CAD建筑工具箱的「柱梁板」来根据实际情况进行柱的绘制。
门窗、楼梯绘制
浩辰CAD建筑还提供了插入门窗和楼梯的专业模块。点击工具箱的「门窗」,调出相应的设置弹窗,并可自由切换门与窗的设置。再根据实际情况,设置门窗的参数以及相应的门窗样式。插入墙体后,门窗会自动打断墙体。

点击工具箱的「楼梯其他」,可以设置不同样式的楼梯。点选任意楼梯后,会出现「楼梯」设置弹窗,可对楼梯参数进行修改和直接调用。

符号标注和尺寸标注
浩辰CAD建筑还提供了丰富的符号标注和尺寸标注功能。在符号标注方面,可以利用「绘制云线」功能对所要标注的部位进行圈选,再使用「引出标注」来添加相应的文字信息。
在尺寸标注方面,浩辰CAD建筑提供了门窗标注、墙厚标注、梯段标注等功能,根据实际标注需求进行选择即可。
一键生成三维效果图
浩辰CAD建筑不仅可以绘制二维的建筑平面图,还可以在此基础上快速生成三维的设计效果图,非常便捷。
以上的CAD实用技巧汇总,你学会了嘛?学会后,你也可以成为高手!
-
- 婚外情二年到什么程度(一段婚外情有这5个阶段)
-
2023-03-11 18:32:47
-
- 口红色号橘色(发色和口红的搭配)
-
2023-03-11 18:30:42
-
- 婚外情里有真爱吗(婚外情到底有没有真爱)
-
2023-03-11 18:28:37
-
- 垃圾老婆的十大表现,对老婆或女朋友有哪些异常表现
-
2023-03-11 18:26:32
-
- 婚外情的相处技巧(如何正确处理婚外情)
-
2023-03-11 18:24:27
-
- 松花蛋的制作方法及配方(检验松花蛋质量常用的方法)
-
2023-03-11 18:22:22
-
- 低档小区开什么店赚钱(十大适合小区内干的小生意)
-
2023-03-11 18:20:17
-
- 婚外情动了真感情怎么办(婚外情男人动了真情怎么办)
-
2023-03-11 18:18:12
-
- 婚后男方买房要加女方名字吗(房产证上要写女方的名字吗)
-
2023-03-11 15:21:27
-
- 婚后男方不给生活费能离婚吗(男方不给家用可以起诉离婚吗)
-
2023-03-11 15:19:22
-
- 婚后男方不给女方生活费(男方应该给女方生活费吗)
-
2023-03-11 15:17:17
-
- 婚后男方不给女方及孩子生活费(不给妻儿生活费的男人)
-
2023-03-11 15:15:12
-
- 婚后联系初恋算出轨吗,婚后出轨初恋能断吗
-
2023-03-11 15:13:07
-
- 婚后老婆脾气越来越大怎么办(婚后妻子情绪越来越暴躁)
-
2023-03-11 15:11:02
-
- 婚后老婆没挣钱可以分财产吗(女方无工作离婚可以分到多少财产)
-
2023-03-11 15:08:57
-
- 婚后老婆拜金怎么办(老公被拜金的前妻伤的太深)
-
2023-03-11 15:06:52
-
- 婚后老婆拜金怎么办(才发现娶了个拜金女)
-
2023-03-11 15:04:47
-
- 婚后老公工资不上交怎么办(男人不愿上交经济大权时)
-
2023-03-11 15:02:42
-
- 体测如果有一项不测要紧吗
-
2023-03-11 14:34:31
-
- 送老师什么礼物最好?
-
2023-03-11 14:32:25



玄幻小说完结巅峰之作排行(2023十大完结巅峰神作)
微量元素有多少种 查微量元素,不要想当然(健康直通车(第67站))