厨房吊顶最简单的方法(厨房吊顶该如何施工)
厨房吊顶最简单的方法(厨房吊顶该如何施工)
原创 本设研习社
01.厨房吊顶该如何施工?
1. 安装边角线
先经过详细的测量工作后使用“弹线法” 用墨水在墙面上弹出水平线,确定好水平位置,在每个线上范围做好相应的标记,方便后期将木方钉入孔隙。
01. How to construct the kitchen ceiling?
1. Install the corner line
After detailed measurement
Use the "snap line method" to snap a horizontal line on the wall with ink
Determine the horizontal position
Mark each line range accordingly
It is convenient to nail the wood square into the hole in the later stage
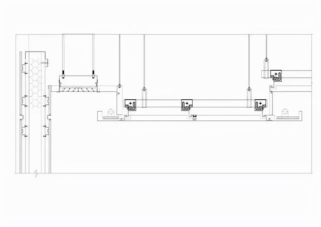
2. 厨房顶部悬吊丝杆膨胀支架,在空间顶部做好测量,尺度测量无误后打孔安装并标记,丝杆支架上的膨胀螺栓钉入孔眼进行安装,切记一定要使用膨胀螺栓,不要使用泡钉,就这样,在厨房的顶部装好了垂直的悬吊支架。
2. Hanging screw rod expansion support on the top of the kitchen
Make measurements at the top of the space
After the dimension measurement is correct, drill holes for installation and mark
The expansion bolt on the screw support is nailed into the eyelet for installation
Remember to use expansion bolts instead of foam nails
In this way, a vertical suspension bracket was installed on the top of the kitchen


3. 安装主龙骨和铝扣板
主龙骨将挂在这种垂直的支架上,再将副龙骨用金属垫片卡扣在在装好的主龙骨上,测量好尺寸没有问题
就可以安装铝扣板,在墙角边缘不规则的区域,根据位置裁剪出合适的大小再进行安装。
3. Install the main keel and aluminum gusset plate
The main keel will be hung on this vertical support
Then snap the auxiliary keel on the installed main keel with metal gasket
There is no problem measuring the dimensions
The aluminum gusset plate can be installed
In areas with irregular corner edges
Cut the appropriate size according to the position before installation


02.厨房吊顶先装吊顶 or 先装吊柜?
这是关于厨房吊顶安装,很多人争议分歧非常大的问题,到底是先装吊柜还是先安装吊顶?
首先分两种情况,如果是防水石膏板吊顶,必须得先吊顶,再做吊柜,如果是铝扣板或者蜂窝大板
必须是先安装吊柜,再吊顶。
02. Is the ceiling installed first in the kitchen or the hanging cabinet installed first?
This is about kitchen ceiling installation
Many people dispute very different issues
Is the hanging cabinet installed first or the ceiling installed first?
First, there are two cases
In case of waterproof gypsum board ceiling
The ceiling must be suspended first, and then the hanging cabinet must be made
If it is aluminum gusset plate or honeycomb plate
The hanging cabinet must be installed first, and then the ceiling


如果是采用铝扣板吊顶,先装吊顶再装吊柜,在吊顶和吊柜之间收口处会产生缝隙,吊柜把吊顶的收口线给遮挡住,存在的缝隙里容易积灰和滋生蟑螂。
If the aluminum gusset plate ceiling is adopted, install the ceiling first and then the hanging cabinet
There will be a gap at the closing between the ceiling and the hanging cabinet
The hanging cabinet covers the closing line of the ceiling
It is easy to accumulate ash and breed cockroaches in the existing gap




有的人可能会想分板到顶来安装,在吊柜顶板和吊顶的交接处,采用玻璃胶进行密封处理,这样的操作就缺乏了收边条的收口美观效果,并且在视觉上没有任何的层次感。
如果先装吊柜再装吊顶,再吊柜吊顶交接处进行收口收边处理,完美的丰富了层次感和整体性,而且也没有任何的缝隙。
Some people may want to install it from board to top
At the junction of ceiling and ceiling
Sealing treatment with glass glue
This operation lacks the beautiful effect of closing the edge strip
And there is no visual sense of hierarchy
If the hanging cabinet is installed first and then the ceiling is installed
Then the junction of the ceiling of the hanging cabinet shall be closed
It perfectly enriches the sense of hierarchy and integrity
And there is no gap



另外油烟机的排烟管和电源插座,以及燃气热水器的废气排气管道,和煤气管道都要在安装吊顶前提前预埋
就免得后期出现各种问题和不必要的麻烦。
In addition, the smoke exhaust pipe and power socket of the range hood
And exhaust gas exhaust pipe of gas water heater
And gas pipelines shall be embedded in advance before installing the ceiling
So as to avoid all kinds of problems and unnecessary troubles in the later stage


要么旅行,要么学习,身体和灵魂总要有一个在路上。
充电吧同学!
来本设,学习室内设计,实现从无到有,从有到精的蜕变!
∨
本设教育系列课程目前包括
软件类:sketch up、CAD、3D MAX、sketch book
设计类:方案优化设计、施工图深化、软装设计、全屋定制、平面方案绘制规范
营销类:商务谈单
如果对室内设计感兴趣的话,可以关注一下我。
点赞 转发 在头条私信“14”即可获得学习资料哦。
码字不易,希望小伙伴们走过路过可以点个赞吖
,
-
- 家常烤箱烤馕的做法(手把手教你烤箱版风味馕)
-
2023-07-30 23:00:25
-
- 地暖分集水器分开安装(这才是地暖分集水器的正确安装使用方法)
-
2023-07-30 22:59:38
-
- 集成灶选购记住这6点保证不会错(集成灶选购指南)
-
2023-07-30 22:58:19
-
- 描述钻石与仿钻的几种鉴别方法(如何区分钻石与仿钻)
-
2023-07-30 22:56:13
-
- 品牌童装折扣店货源进货渠道(品牌折扣童装开店难不难)
-
2023-07-30 22:54:07
-
- 建筑节能标准指什么(建筑节能的标准)
-
2023-07-30 22:52:01
-
- 初中毕业几种出路(初中毕业生有哪些好出路和选择)
-
2023-07-30 21:46:30
-
- 电脑音响有滋滋声怎么解决(音响电流声很大消除方法)
-
2023-07-30 21:44:25
-
- 离婚后该不该为前夫复婚(你会与前夫复婚)
-
2023-07-30 21:42:20
-
- 大棚养虾成本及利润(1000亩养虾大棚年赚3000万)
-
2023-07-30 21:40:16
-
- 初唐四杰都有哪些人(初唐四杰指的是哪四个人)
-
2023-07-30 21:38:11
-
- 电脑如何把软件设置成开机自启动(一招教会你管理)
-
2023-07-30 21:36:06
-
- 夜市小吃美食大全(夜市小吃在家做)
-
2023-07-30 21:34:01
-
- 床垫口碑排名前十名慕思(十大高端家居皮床品牌)
-
2023-07-30 21:31:56
-
- 大年初五俗称破5习俗有哪些(大年初五迎来破五)
-
2023-07-30 21:29:51
-
- 第四届全国运动会武术比赛(第十一届世界运动会)
-
2023-07-30 21:27:46
-
- 带鱼怎么做好吃到停不下来(吃到美味带鱼的4个步骤)
-
2023-07-30 13:29:59
-
- 锤子坚果pro到底值不值得买(锤子手机出品最新款坚果Pro实机评测报告)
-
2023-07-30 13:27:54
-
- 大范围较强冷空气即将发威(全能型冷空气登场)
-
2023-07-30 13:25:50
-
- 单筒望远镜和双筒望远镜优缺点(什么类型的望远镜好)
-
2023-07-30 13:23:45



玄幻小说完结巅峰之作排行(2023十大完结巅峰神作)
微量元素有多少种 查微量元素,不要想当然(健康直通车(第67站))